Обяви За нас Контакти
Продава 4-СТАЕН
град София, Център
бул. Иван Иванов
544 755 €
1 065 448.17 лв.

(2 299 €, 4 496.45 лв./m2)
Цената е с включено ДДС
Коригирана в 15:23 на 27 октомври, 2025 год.
Обявата е посетена 1070 пъти.
Площ:
237 m2
Етаж:
3-ти от 13
ТEЦ:
Лок.отопл.
Строителство:
Тухла, Ще бъде въведен в експлоатация 2028 г.

Описание на имота:


Модерна новострояща се сграда със съвременна визия, подземен и надземен паркинг, 13 жилищни етажа и срок на завършване първото тримесечие на 2028 г. Сградата е с отлична локация-в близост до градски транспорт и метро. Монолитно строителство с висококачествени материали. Обектите се предават на замазка и шпакловка, съгласно изискванията на БДС. Отоплението ще бъде решено на ток-с климатици, а след Акт 16 - възможност за термопомпи. Гъвкава схема на плащане. Имате възможност на избор между функционални двустайни, тристайни, многостайни апартаменти и впечатляващ пентхаус на последния етаж с уникална панорама; подземни и надземни паркоместа;

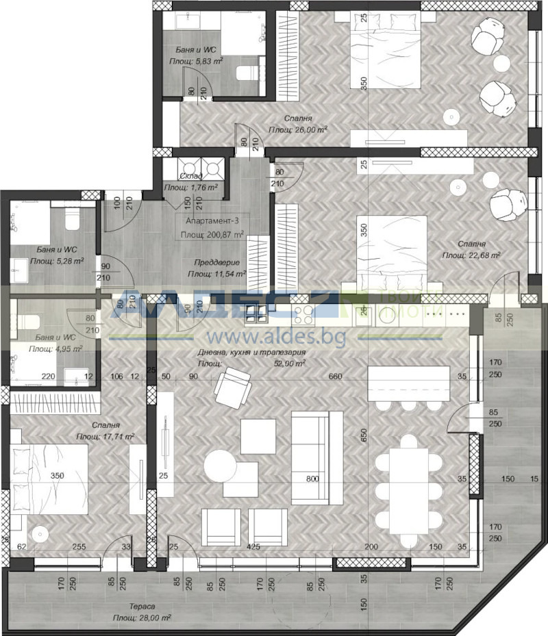
НОВ, ЛУКСОЗЕН, ТУХЛЕН ЧЕТИРИСТАЕН апартамент в центъра на София, в близост до важни локации, като: административни сгради, учебни заведения, множество магазини, детски градини. Апартаментът ще бъде разположен на етаж трети от тринадесет етажна сграда. Застроена площ: 200.87 кв.м. Обща площ: 236.85 кв.м. РАЗПРЕДЕЛЕНИЕ: предверие-11.54 кв.м., склад-1.76 кв.м., 3 бани с тоалетни, съответно-5.83 кв.м., 5.28, и 4.95 кв.м., 3 спални, съответно: 25.00 кв.м. , 22.68 кв.м., 17.71 кв.м., дневна, кухня и трапезария-40.00 кв.м., ъглова тераса-28.00 кв.м. ИЗЛОЖЕНИЕ: ЮЗ а3

В тази уникална, с модерна естетична фасада сграда, проектирана с най-съвременние технологии да издържи и като конструкция, и като стойност на имота, предлагаме от двустайни до многостайни апартаменти на цени от: 316575.63 -1557812.30 евро.
ЗА ПОВЕЧЕ ПОДРОБНОСТИ И ОГЛЕДИ: 0892242802, оферта: 11867 а3
Виж всички обяви в aldes.bazar.bg или тук
Особености
Тухла
Асансьор
С паркинг
Интернет връзка
Контрол на достъпа
Охрана
Саниран
За контакт:
029898416 АЛДЕС
Брокер:
ИЛОНА КОМАТАНОВА
029898416; 0892242802
Офис: Иван ВАЗОВ, гр.София, ул.'Иван Вазов' 29
Още оферти от брокера: Продава | Дава под наем | Купува | Наема
Агенция:
АЛДЕС ИМОТИ
0892242808
АЛДЕС ИМОТИ logo
Медал за прослужено време
В imot.bg от 2005 г.
aldes.imot.bg
Адрес:
област София, гр. София, ул. Иван Вазов 29 и бул. Васил Левски 91
ИЗПРАТИ ЗАПИТВАНЕ
ИЗПРАТИ ЗАПИТВАНЕТО

Продава 4-СТАЕН
град София, Център
бул. Иван Иванов
Обява: 1d175343896982347

544 755 €
1 065 448.17 лв.
(2 299 €, 4 496.45 лв./m2)

Цената е с включено ДДС
ЗАПАЗИ ОБЯВАТА

Местоположение: град София, Център, бул. Иван Иванов

Допълнителни данни за имотите в района и сравнение с други райони: Търсене в АРХИВ 2013 - 2025 г.











Добави/редактирай
вид имот и район
*Средните цени са определени чрез медиана стойност.